On December 9, the Community Preservation Commission voted unanimously to recommend a $600,000 grant to the Suzuki School of Music toward building an accessible rear addition at 1615 Beacon Street. Approval depends on votes by the Zoning and Planning and Finance Committees and the full City Council in 2026.
“When we purchased the Staples Farmhouse in 2017, we took a leap of faith with encouragement from the community,” recalled Executive Director Sachiko Isihara. “We knew it would be a 10-year journey to fully restore and adapt this lovely historic building.” The school, a nonprofit organization, purchased the building for $3.6 million and has already invested a further $2.3 million in needed upgrades.
The familiar structure, which dates to 1750, is the oldest home standing in Waban and has evolved over the centuries, having previously served as a farmstead, a rectory for the nearby Parish of the Good Shepherd, and a suburban family home with a dental practice in the rear addition. In 2015, when its future was uncertain, it was designated a City of Newton Landmark.

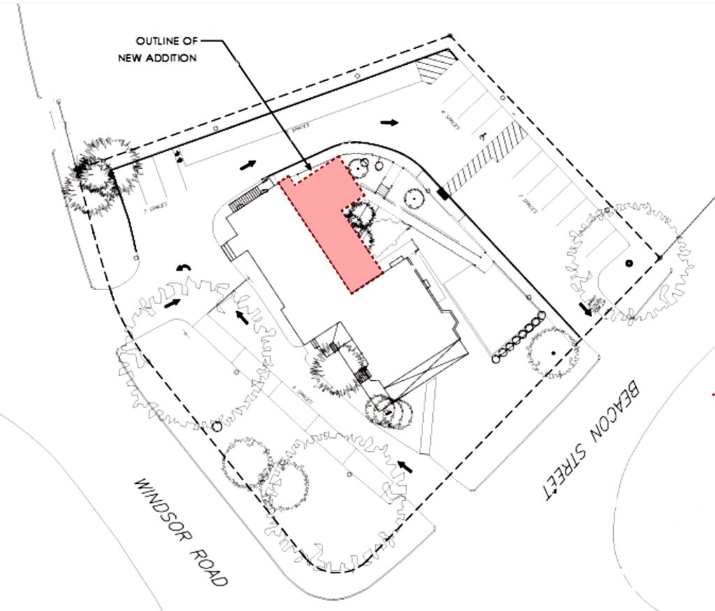
The Massachusetts Community Preservation Act provides for state and local funds to invest in four areas: affordable housing, open space, recreation and historic resources. If approved, the proposed grant would fund 23% of the project which includes a rear two-story addition with an elevator and a multi-purpose community room, as well as essential restoration work on the porch, windows and siding. The addition has been approved by the Newton Historical Commission and the Waban Area Council. The Planning Department completed an Administrative Site Plan Review in June. To date, families and local businesses have committed $1.4 million toward the $2.5 million project. One donor has offered to match additional gifts.

The Suzuki School of Newton, now celebrating its 40th anniversary, also operates an arts integrated pre-school. While known for teaching children, the school has found that its fastest growing program is now for adults seeking to learn to play an instrument. The building is the site for many recitals, performances, art exhibits, and community meetings. “We’d like to make sure parents with strollers and visitors with mobility challenges can participate,” explained Isihara. The Massachusetts Architectural Access Board issued a waiver to meet full ADA compliance, but that waiver expires in 2028.





